Guide Price £1.75 Million For Sale Contact an agent
A special house in a magical setting providing significant holiday rental income from a stunning holiday barn, equestrian facilities and further potential use of traditional and modern buildings.
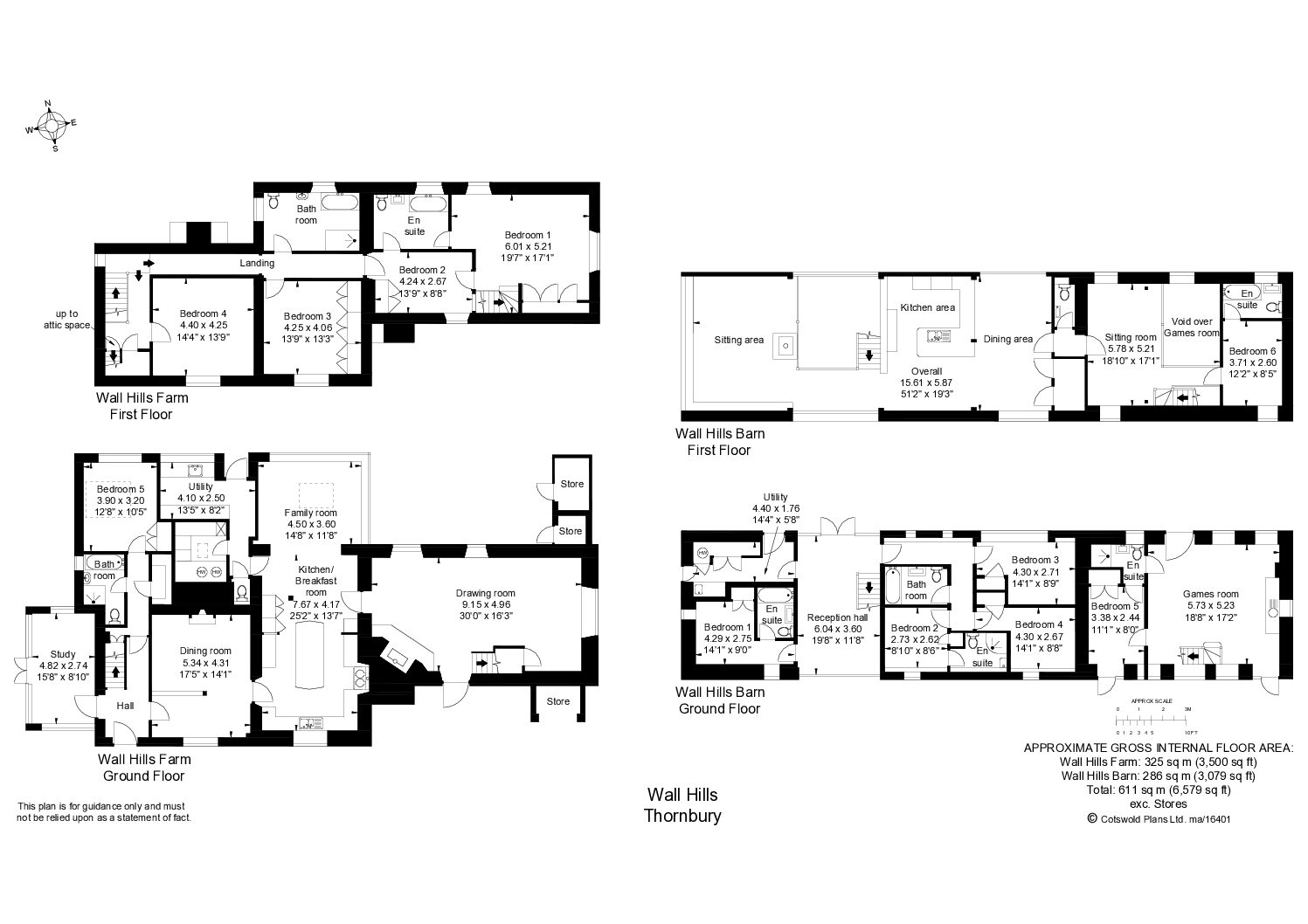
THE FARMHOUSE
- Sitting room
- Dining room
- Office
- Kitchen/breakfast room
- Family room
- Ensuite bedroom on the ground floor
- Four further bedrooms and two bathrooms on the first floor
- Planning to provide additional accommodation on the second floor
THE HOLIDAY BARN
- Six bedrooms and five bathrooms (four ensuite)
- Reception hall
- Utility room
- Games room
- Open plan kitchen, dining and sitting room
- Further sitting room
FURTHER PROPERTY
- Traditional and modern buildings including garaging, stabling, storage and workshop
- Manège
- Paddocks
- Woodland
- Orchard
- Garden and grounds and part of an Iron Age Fort
- In all about 17.4 acres
Hereford 14 miles * Ludlow 17 miles * M5 Worcester (Jct 7) 19 miles
(All distances are approximate)
These particulars are intended only as a guide and must not be relied upon as statements of fact
SITUATION
The approach to Wall Hills Farm is both panoramic and
breathtaking. The lane bends and twists until it meets the
ramparts of an Iron Age hill fort where it runs parallel to them
as it arrives at the farm. There is a sense of history here, then
through five bar gates onto a gravelled courtyard with an
open sided building with room for three cars and an old stone
barn, once a stable and store, all in front of the house.
Wall Hills Farm owns impressive ramparts of the Hill Fort.
According to Historic England these were constructed
sometime between the fourth century BC and the first
century AD. These are rare, especially in this region, with
most situated in the southwest of England. This strategic
elevated position is now greatly enjoyed by Wall Hills Farm.
THE FARMHOUSE
The farmhouse has been significantly improved over the last
12 years. A single storey extension was added at the back of
the house providing a family room as part of the open plan
kitchen and a bedroom and bathroom, all with underfloor
heating. Solar panels have been added and an EV charging
point. The house has had new accoya wood windows fitted
throughout and a bespoke Russell Alexander kitchen with a
new electric AGA as well as a new wood floor in the Drawing
Room. All the bathrooms have been refitted.
Stone steps lead up to a terrace that runs along the length of
the house. The front door leads into a lobby with a staircase
and doors off to the Office/Study and a “private” door
leading to the bedroom with ample cupboards and its own
bathroom.
The Dining Room has an open fireplace and oak floor.
Through to the impressive open plan fully fitted kitchen with
its island unit and electric Aga opening out to the Breakfast
Room and Family Room beyond. A side door leads off to the
Boiler Room and Utility Room and back door. The Sitting
Room has a wood burning stove and French doors onto the
terrace as well as the back staircase. On the first floor there
are four bedrooms and two bathrooms. Bedroom 2 could
also be used as a dressing room for the main bedroom, which
has a staircase leading down to the sitting room.
THE HOLIDAY BARN
”A wonderful base for a multigenerational reunion and family holiday”
Standing alongside the farmhouse is the impressive holiday
barn which sleeps 12 and has over the last three years
generated an average gross income in excess of £70,000 per
annum. It has a separate entrance off the lane where there
is more than adequate parking. The barn has a magnificent
open plan top floor, which includes a seating area with an
eyeline panoramic window and a fabulously fitted kitchen
and dining room. Beyond is a cloakroom and sitting room
with a balustraded staircase overlooking and going down to
the games room and an ensuite bedroom beyond. Off the
games room on the ground floor is a bunk bedroom and
shower room and an enclosed secure trellis fenced terrace.
From the main hall which is glazed to eaves on both
elevations and with the main staircase are four further
bedrooms, three bathrooms and a utility room. Solar panels
have been added and an EV charger point. A ground source
heat pump was installed in 2018 which serves underfloor heating throughout.
THE GARDEN AND GROUNDS
The Farmhouse has gardens to the front and the rear
of the house where there is a splendid vegetable
garden and green houses and lawns interspersed
with fruit trees. The Barn in addition to the terrace
outside the playroom, has a patio/seating area and
a garden to the west side which also includes a small
playground.
TRADITIONAL AND MODERN BUILDINGS
In addition to the traditional courtyard buildings,
there is an excellent modern building on the other
side of the lane which include a large machinery/
equipment store with a small workshop and part
open sided with two stables and a tack room. A lean
to building along one side is a useful machinery
shelter and there is a further enclosed vegetable
garden.
THE PADDOCKS, MANÈGE AND WOODLAND
The ramparts of the Hill Fort have recently been
cleared and re-fenced for grazing. All paddocks have
water laid on and a fruit orchard was planted in 2016
west of The Barn garden. The all-weather manège
measures about 40m by 20m. Apart from the trees
on the fort, there are three small areas of woodland
planted in 2012, the eastern one having a large
wildlife pond and a tree house.
The situation lends itself well for possible glamping and other opportunities.
SERVICES
For both properties and fields there is a borehole water supply with pressurised and filter
systems housed in the Pump House. The farmhouse and barn share the shared biodisc
aerated foul drainage system. Mains electricity. Solar panels. EV charging point. Oil fired
heating in house. Ground Source Heat Pump in barn. Hereford Council Tax Band F with
small business relief on the holiday barn.
RIGHTS OF WAY, EASEMENTS AND WAYLEAVES
The property is sold with the benefit and subject to all wayleaves, easements and rights of
way. There is an agricultural right of way running from the lane to the neighbours field to
the west of the property. There is an obligation to provide water for stock to the fields in
the middle of the fort, for which an annual payment is made.
FIXTURES AND FITTINGS
The fitted blinds, curtains, light fittings and carpets in the house are included in the sale.
The contents of The Barn, farming equipment and stock as well as the moveable field
shelters are not included but are available by way of separate negotiations.
DIRECTIONS (HR7 4NW)
What3words: took.lows.etchings
Take the B4214 from Bromyard towards Tenbury Wells. After 3 miles turn left to Thornbury and then right signed Wall Hills.
VIEWING
Strictly by appointment with Bengough Property
01568 720159.















































































































































































